Description

🏡 Tranquil Living Meets Modern Design – Seventh Bend Estate, Melton South

1936 Shelterbelt Ave | 7-Star Energy Rated | Elegant, Efficient & Effortless

Total Price: $739,270
Land Size: 392 m² (Approx.)
Home Size: 157 m² (Approx.)
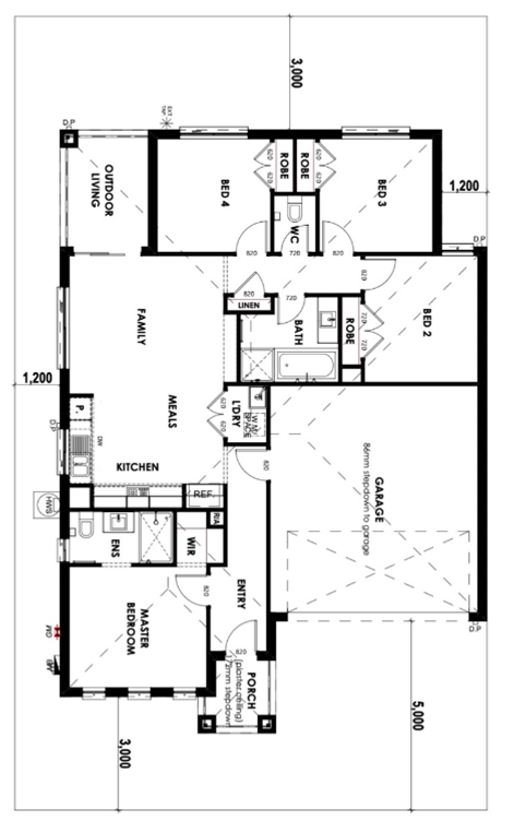
Bedrooms: 4  Bathrooms: 2  Garage: Double

🌿 A Place to Grow, A Home to Belong

Set within the peaceful surrounds of Seventh Bend Estate, Melton South, this beautifully appointed home is where thoughtful design meets timeless style.
Created for families who appreciate space, comfort, and connection, it offers the perfect sanctuary — light-filled interiors, sustainable features, and an effortless flow between indoor and outdoor living.

With a 7-Star Energy Rating, this home delivers both elegance and efficiency — a place where modern design and mindful living coexist in harmony.

🏠 Interior Highlights – Understated Luxury & Everyday Functionality

Contemporary kitchen with 40 mm stone benchtops, waterfall edge & soft-close cabinetry

900 mm stainless-steel appliances including oven, cooktop, rangehood & dishwasher

Walk-in pantry offering practicality and seamless organisation

Open-plan living and dining connecting naturally to the outdoor alfresco

Master bedroom suite with walk-in robe & ensuite featuring double vanities & full-height tiling

Three additional bedrooms with mirrored built-in robes

Stylish main bathroom with freestanding bath, semi-frameless shower & chrome fixtures

Dedicated study nook or home workspace

Hybrid timber flooring to living zones & soft premium carpets in bedrooms

High ceilings (2590 mm) enhancing brightness and openness

LED downlights throughout with feature pendant lighting in kitchen

Ducted heating & split-system cooling ensuring year-round comfort

Double-glazed windows for thermal efficiency and quiet serenity

7-Star Energy Efficient Design – lowering costs and maximising comfort

🌳 Outdoor Inclusions – Every Detail Considered

Modern architectural façade with textured render and feature cladding

Colorbond roof and remote-controlled double garage with internal access

Exposed aggregate driveway & paved entry path

Undercover alfresco area for relaxed outdoor dining and gatherings

Fully landscaped front and rear gardens with turf, planting & edging included

Boundary fencing with side gate access for privacy and security

Letterbox, clothesline & TV antenna included

Rainwater tank connected to toilets and garden taps

NBN-ready for high-speed connectivity

Exterior LED lighting and water-saving tapware as standard

📍 Location & Lifestyle – Seventh Bend Estate, Melton South

This home enjoys a prime position within the established Seventh Bend community, known for its tree-lined streets, parklands and family-friendly environment.
Close to schools, shops and transport, it offers everything you need within easy reach — while maintaining the calm and quiet of suburban living.

Easy freeway access to Melbourne CBD (approx. 40 min)

Here, lifestyle meets convenience — the perfect foundation for a growing family or first home buyer seeking quality and value.

📋 Package Summary
Feature Details
Estate Seventh Bend Estate, Melton South
Address 1936 Shelterbelt Ave, Melton South
Price $739,270 (Full Turnkey Package)
Land Size 392 m² (Approx.)
Build Size 157 m² (Approx.)
Bedrooms 4
Bathrooms 2
Garage Double Lock-Up Garage
Energy Rating 7-Star Nationwide House Energy Rating
💎 Why You’ll Love This Home

It’s modern, but not cold. Stylish, but still welcoming.
This home offers the freedom to live, work, and unwind in comfort — with a layout that grows with your family and design that stands the test of time.
From the morning light spilling into your kitchen to the evenings shared under the alfresco, everyday moments feel special here.

⚠️ Disclaimer

All information, descriptions and images are for illustrative and marketing purposes only. Details are subject to change without notice. The builder and developer reserve the right to alter materials, designs and inclusions to equal or higher standards. Final pricing, layout and specifications may vary depending on land conditions, council regulations and developer guidelines. Interested purchasers should verify all information independently before entering into a contract.


Features

  • Alarm System
  • Ensuite
  • Remote Garage Control
  • Outdoor Entertainment Area
  • Study
  • Gas Heating
  • Split System Air Conditioning
  • Broadband Connection
  • Built in Robes
  • Dishwasher
  • Rumpus Room


We aim to look after your end-to-end construction, development and selling needs. Contact us for more information.

Get In Touch

1/16 McDougall Street
Brisbane
QLD 4064