Description

Turnkey House & Land Package
Own your brand new house where no one had ever lived in before! Step into modern family living with this beautifully designed house and land package in the vibrant suburb. Surrounded by natural beauty community charm, this home offers a perfect blend of lifestyle, comfort, and quality. Beautifully designed bedroom home. Perfect for families, investors, or first home buyers looking for a complete move-in-ready solution.

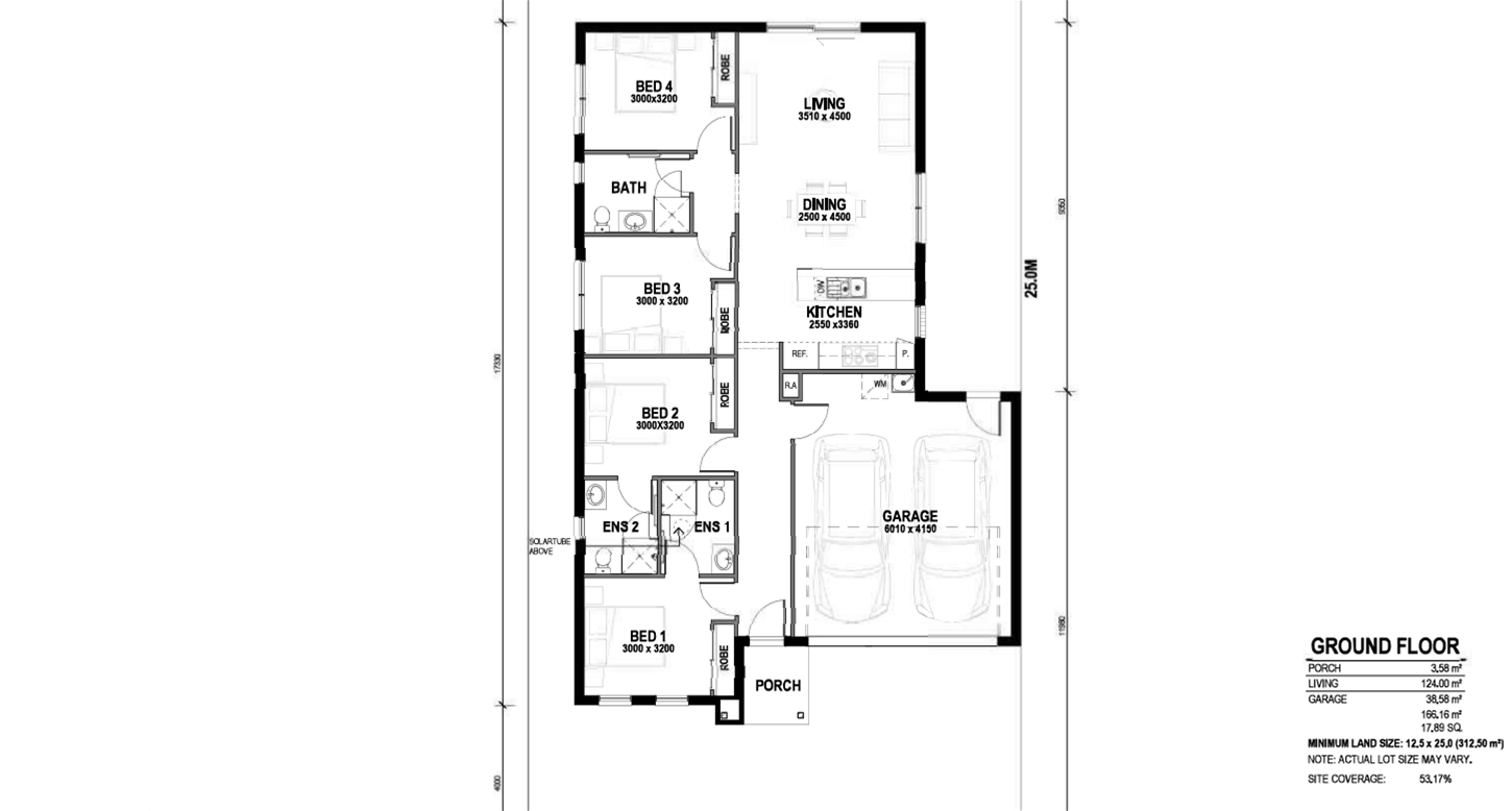
4 Bed | 3 Bath | 2 Car

Property Details:
Land Size 312 sqm
House Size 166.16 sqm

Inclusion
The package encompasses comprehensive building compliance services including site assessments, 7-star energy ratings, and BAL bushfire certifications where required, with all necessary permits secured. Site preparation features engineered slab foundations accommodating up to 500mm fall, rock excavation allowances, and essential utility connections including stormwater drainage and NBN readiness. Structural elements combine face brickwork with rendered front facades, Colorbond roofing, and aluminium security windows, supported by 10mm plasterboard interiors with 2590mm ceiling heights. Kitchens are equipped with 900mm stainless steel appliances and 20mm engineered stone benchtops, while bathrooms feature semi-framed shower screens, freestanding baths, and ceramic tiling. The home includes laminate timber-look flooring in living areas, carpeted bedrooms, and smart storage solutions with mirrored wardrobes. Climate control is managed through split-system air conditioning and wall heaters, complemented by a 6.6kW solar PV system and RCD-protected electrical wiring with LED lighting throughout. Externally, the property offers irrigated drought-resistant landscaping, coloured concrete driveways, and estate-compliant fencing. A 10-year structural warranty and 3-month maintenance period provide quality assurance, with all materials selected from the builder's standard range.

Home Features includes
- Spacious bedrooms, including master suite with WIR & ensuite
- Stylish bathrooms with premium finishes
- Car remote garage
- Kitchen, dining & living areas

Contact us today for full plans, inclusions, and estate information. Your dream home awaits!

Disclaimer
All images, renders, and plans are for illustrative purposes only and may not represent the final product. Prices, availability, and specifications are subject to change without notice. Any information provided is of a general nature and should not be considered financial or legal advice. The listing agent or agency does not accept responsibility for any inaccuracies, errors, or omissions in this advertisement. Interested parties are encouraged to conduct their own research and seek independent advice before making any purchasing decisions. Final inclusions, dimensions, and finishes may vary.




We aim to look after your end-to-end construction, development and selling needs. Contact us for more information.

Get In Touch

1/16 McDougall Street
Brisbane
QLD 4064