Description

🏡 Modern Serenity – Five Farms, Clyde North

903 Heather Grove | 7-Star Energy Rated | Timeless Design. Effortless Comfort.

Total Price: $789,120
Land Size: 350 m² (Approx.)
Build Size: 180 m² (Approx.)
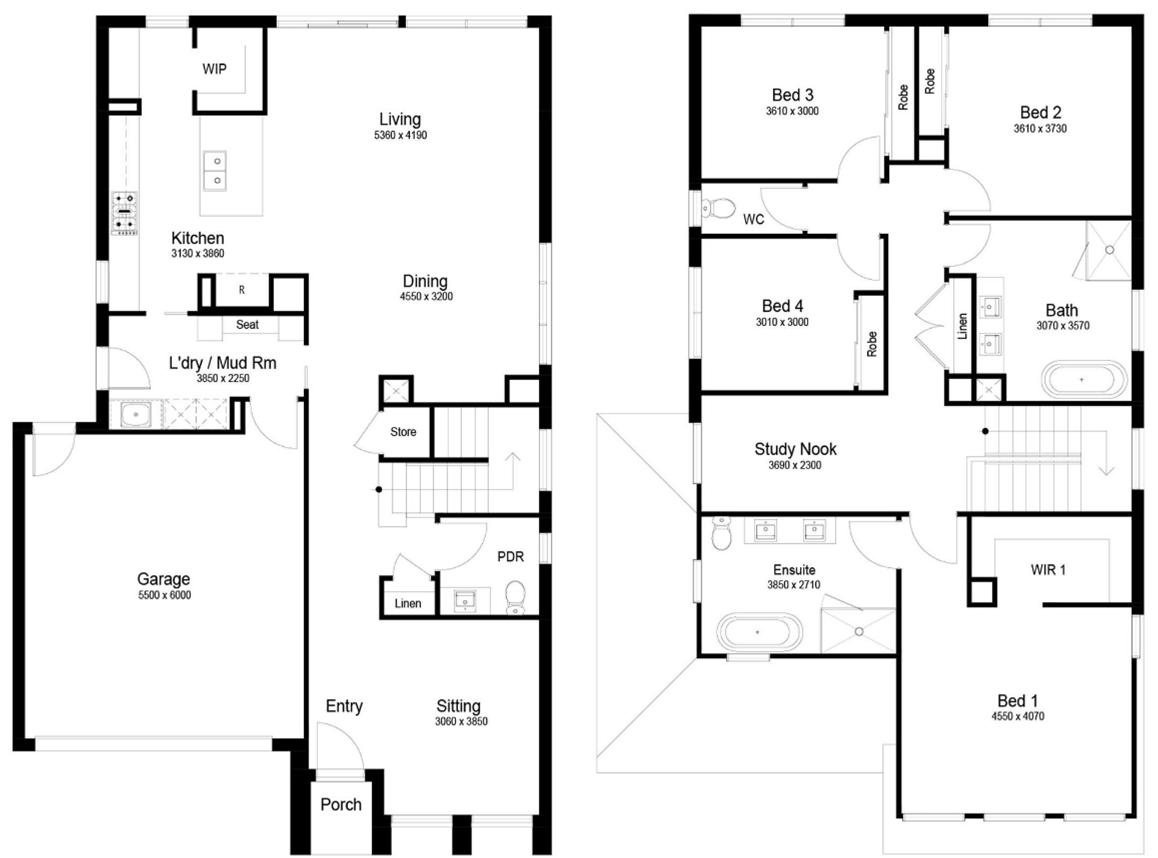
Bedrooms: 4  Bathrooms: 2  Garage: Double

🌿 Inspired Living, Designed for Modern Families

Welcome to Five Farms, one of Clyde North’s most sought-after communities — where architectural excellence meets family warmth.
This beautifully designed four-bedroom, two-bathroom home captures the essence of modern Australian living, offering light-filled interiors, premium finishes, and thoughtful spaces that adapt to your lifestyle.
With a 7-Star Energy Rating, you’ll enjoy both comfort and efficiency in a home built for the future.

🏠 Interior Highlights – Refined Style, Exceptional Detail

Gourmet kitchen with 40 mm stone benchtops, waterfall edge & soft-close cabinetry

900 mm stainless-steel European appliances including oven, cooktop, rangehood & dishwasher

Walk-in pantry for effortless organisation and convenience

Open-plan family and dining areas with seamless flow to the alfresco retreat

Private master suite featuring a walk-in robe and ensuite with twin vanities & full-height tiles

Three additional bedrooms with mirrored built-in robes and plush premium carpeting

Main bathroom with freestanding bath, semi-frameless shower & designer chrome fittings

Study nook / home office perfect for work or learning flexibility

Hybrid timber flooring throughout living zones & luxury carpet to bedrooms

High 2590 mm ceilings enhancing natural light and spaciousness

LED downlights throughout with feature pendant lighting in kitchen

Ducted heating & split-system cooling providing year-round comfort

Double-glazed windows & full insulation for quiet, energy-efficient living

7-Star Energy Efficient Design – combining sustainability with style

🌳 Outdoor Features – Contemporary Elegance Meets Functionality

Architectural façade with render and feature cladding for premium street appeal

Colorbond roof & remote-controlled double garage with internal access

Exposed aggregate driveway & paved entry path

Undercover alfresco area perfect for outdoor dining and weekend relaxation

Fully landscaped front and rear gardens with lawn, shrubs & decorative edging

Full boundary fencing and side gate access for security and privacy

Letterbox, clothesline and TV antenna included

Rainwater tank connected to toilets and garden taps

NBN-ready for high-speed connectivity

Energy-efficient exterior LED lighting & water-saving fixtures

📋 Package Summary
Feature Details
Estate Five Farms, Clyde North
Address 903 Heather Grove, Clyde North
Price $789,120 (Full Turnkey Package)
Land Size 350 m² (Approx.)
Build Size 180 m² (Approx.)
Bedrooms 4
Bathrooms 2
Garage Double Lock-Up Garage
Energy Rating 7-Star Nationwide House Energy Rating
💎 Why You’ll Love This Home

This home delivers the perfect blend of modern design and everyday practicality — stylish, sustainable, and built for connection.
From the open living zones to the serene master suite, every corner has been crafted for comfort and ease.
A place where life feels calm, bright, and beautifully complete — your dream home awaits.

⚠️ Disclaimer

All information, images and descriptions are provided for marketing and illustrative purposes only and may be subject to change without notice.
The builder and developer reserve the right to modify materials, specifications and inclusions to equal or higher standards.
Final pricing, layout and inclusions may vary depending on site conditions, council requirements and developer guidelines.
Purchasers should verify all details independently before entering into a contract.


Features

  • Alarm System
  • Ensuite
  • Remote Garage Control
  • Outdoor Entertainment Area
  • Study
  • Gas Heating
  • Split System Air Conditioning
  • Broadband Connection
  • Built in Robes
  • Dishwasher
  • Rumpus Room


We aim to look after your end-to-end construction, development and selling needs. Contact us for more information.

Get In Touch

1/16 McDougall Street
Brisbane
QLD 4064