Description

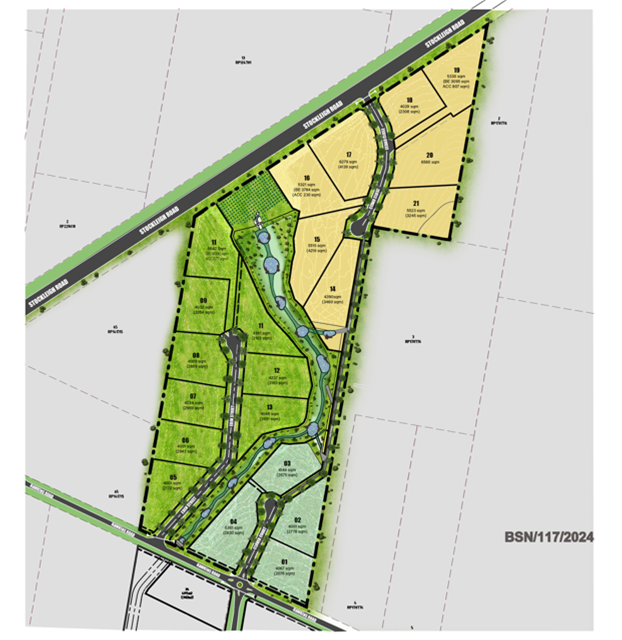
Welcome to Meadowview Stockleigh: A Serene 21-Lot Acreage Subdivision

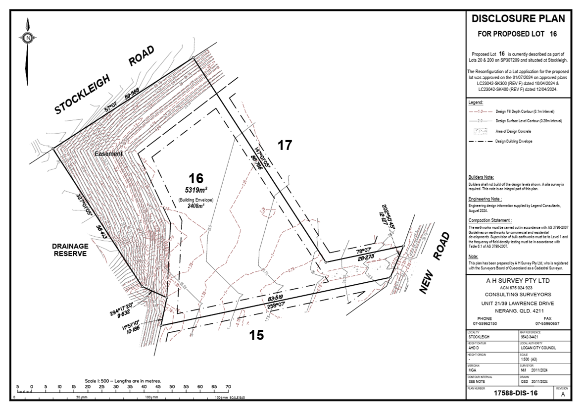
Contract crashed.... Lot 16 is back on the Market in the otherwise Sold Out Meadow View Estate...... Titles to be registered in December or January.

Discover the tranquility and opportunity that awaits you at Meadowview, a boutique 21-lot acreage subdivision nestled in the heart of Stockleigh.

This exclusive community offers families the chance to build their dream home amidst picturesque landscapes, providing the perfect backdrop for a serene lifestyle. With spacious lots designed for privacy and comfort, Meadowview is an ideal setting for those seeking a harmonious blend of nature and modern living.

Key Features:

Prime Location: Just 7 minutes from Kings Christian College, Jimboomba, and Yarrabilba, ensuring convenient access to quality education and amenities.

Commuter Friendly: Only 40 minutes to Brisbane and 1 hour to the stunning beaches of the Gold Coast, making weekend getaways and city commutes a breeze.

Natural Surroundings: Enjoy the peace and beauty of rural living, with abundant space for outdoor activities and family gatherings.

Full Pressure Town Water: Enjoy the convenience of Full Pressure Town Water which is Rare in Many Acreage lots.

Flat Blocks: Explore our selection of flat and gently sloping blocks for sale, offering a perfect canvas for your dream home with ease of construction and limitless design possibilities.

Following the success of Bellevue Estate, Jimboomba Salt Development Projects is proud to present Meadowview, where your family's future begins. Embrace the opportunity to create lasting memories in a community that values tranquility and connection.

Don't miss your chance to be part of this exceptional neighbourhood and enquire Today




We aim to look after your end-to-end construction, development and selling needs. Contact us for more information.

Get In Touch

1/16 McDougall Street
Brisbane
QLD 4064